加载中
首页
图库
课设毕设
资料库
工程师
活动福利
+
发布图纸
登录
注册
账号密码登录
两周免密登录
忘记密码?
登 录
同意
《隐私协议》
和
《注册协议》
还没有账号,
去注册
账号注册
获取验证码
同意
《隐私协议》
和
《注册协议》
注册
已有账号,
去登录
微信扫码登录
单层粮食平房仓建筑设计施工图(ID:717862)
机械设备
/
非标机械
/
单层粮食平房仓建筑设计施工图
120
0
0
平面图
文件列表
屿双网
屿双网
屿双网
屿双网
屿双网
屿双网
屿双网
屿双网
屿双网
屿双网
#
文件名称
文件大小
1
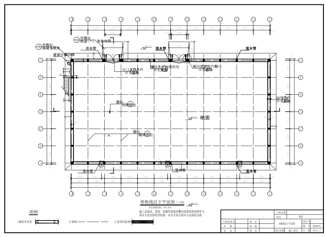
堆粮线以下平面图.png
126 KB
2
微信截图_20230831070047.png
4.05 KB
3
某粮仓施工图_t3.dwg
4.08 MB
4
粮库.png
105 KB
5
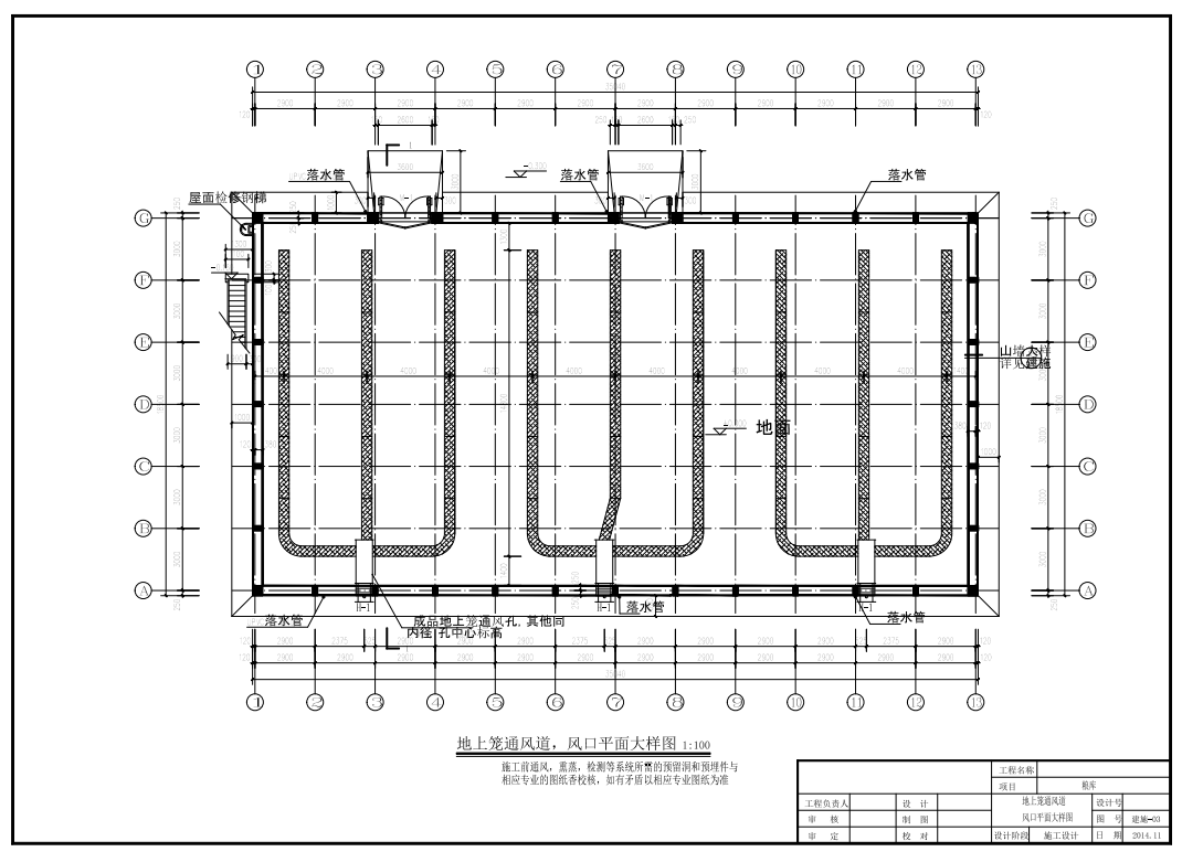
风口平面大样图.png
167 KB
举报/反馈
免责申明: 本网站模型由用户自行上传,如权利人发现存在误传其作品情形,请及时与本站联系。
立即下载
此图纸下载需要
30
金币
图纸ID:
717862
文件大小:
4.02M
软件版本:
AUTOCAD 2007
图纸格式:
dwg
参数/编辑:
可修改,包括参数
上传时间:
2025-03-27
图纸介绍:
发布者
屿双网qhan
关注
作品:
1740
粉丝:
2
作者其它图纸
查看更多
番茄采摘机械手结构设计(含三维图+CAD图纸+说明书)源文件
AUTOCAD,UG,SOLIDWORKS,STP
2025-03-10 11:35
某型汽车麦弗逊悬架转配图
AUTOCAD
2024-07-09 17:12
液压VMC旋转夹具
STEP,SOLIDWORKS
2024-06-29 11:05
电动滚筒
SOLIDWORKS
2025-01-16 16:00
X2527+动柱式摆头五轴加工中心
SOLIDWORKS,PARASOLID
2025-03-29 22:49
大型码垛方案
PARASOLID
2025-02-10 15:56
机械时钟复杂的齿轮传动设计模型
SOLIDWORKS
2024-07-10 22:09
液压缸装配图+活塞零件图+GB图框
AUTOCAD
2024-07-28 22:57
猜你喜欢
薯类收获机械去泥橡胶星轮辊组
SOLIDWORKS,STEP
2024-07-30 23:17
钥匙钮按钮开关[QG115-A1-10Y]
SOLIDWORKS
2025-02-22 16:28
轻载电动缸TPA-ESR40-1210C-L150-M-FB-W-P40-C3
STEP
2025-06-03 09:55
螺牙氣缸 多固型氣缸2D-NQO25x15-S
AUTOCAD
2025-11-03 15:47
CCTL模组TL60-S150-BL.dwg
AUTOCAD
2025-03-20 11:51
MXL型宽度指定型同步带轮_SWMXLHC-36-20-10-A
SOLIDWORKS
2025-05-06 08:33
上银直线导轨线性滑轨HGH-CA╱HGH-HA[HGH65CAE1R200EZ0CI+E2╱RC]
SOLIDWORKS
2025-02-22 13:14
NXC-40_N~65_N交流接触器外形安装尺寸图202204
AUTOCAD
2025-04-10 14:47
模型报错
模型报错类型:
分类错误
版本错误
雷同或版权问题,重复ID
图片与模型不一致
文件不完整
解压文件打不开或有问题
模型报错描述:
联系方式
提交报错
提示
×
下载该图档需要消耗30金币!
确认下载
我和
会话
发布私信
客服
扫码添加微信客服
签到
分享
TOP