加载中
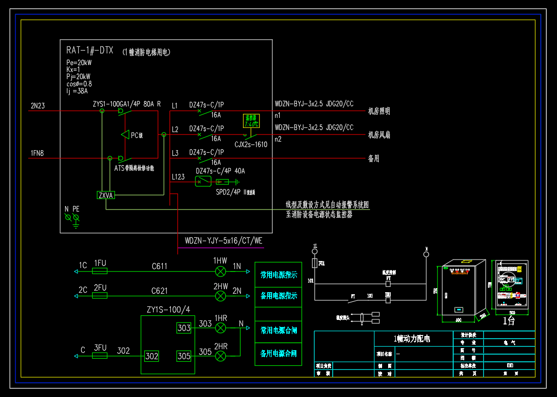
某公馆项目-成套电气配电箱动力柜深化图箱体图(ID:849248)
免责申明: 本网站模型由用户自行上传,如权利人发现存在误传其作品情形,请及时与本站联系。
免费下载
此图纸可免费下载
图纸ID:849248
文件大小:4.04M
软件版本:AUTOCAD 2004
图纸格式:dwg
参数/编辑:可修改,包括参数
上传时间:2026-03-12
图纸介绍:
发布者
屿双网小匠
作品: 13827
粉丝: 65
作者其它图纸
查看更多
SolidWorks设计的AR15步枪3D模型
SOLIDWORKS,STEP,PARASOLID,UG
2024-05-20 00:45
小米汽车su7   三维模型
STEP,3DMAX,BLENDER
2024-04-09 01:39
塑料铺设农机结构
STEP,SOLIDWORKS
2024-02-27 00:57
同步轮同步带直线滑台模组
SOLIDWORKS,STEP,PARASOLID
2024-01-09 01:27
CNC 三轴模型
SOLIDWORKS,STL
2024-05-27 20:42
1比35 虎式坦克
STEP,SOLIDWORKS
2024-03-01 16:29
猜你喜欢
端子15EDGVT-3.5-14P-14-00AH
STEP
2025-03-22 20:00
电气箱ASR -参数
SOLIDWORKS
2025-08-05 06:53
数控清洁风扇
SOLIDWORKS,STL
2025-02-28 17:07
电气按钮开关LAY50-22C-QX
SOLIDWORKS,STEP
2025-06-12 09:35
K0186-电气布线箱
SOLIDWORKS
2024-07-31 00:23
提示
×

下载该图档需要消耗0金币!

确认下载
客服
TOP